2023
ACTIVE
The Wynwood is a collection of 35 beautifully designed townhomes located in Serpong, inspired by the vibrant art district of Miami, Florida. Our architect, RUANGRONA, combined contemporary architecture styles with modern tropical influences to create this compact yet functional home.
Conveniently located on Jl Hj Jamat Gg Rais, Serpong, The Wynwood is only a stone throw away from BSD and Puspitek Pamulang. We are surrounded by amenities such as malls, hospitals, and schools and enjoy easy access to major freeways and public transportations.
RUANGRONA is an up-and-coming local architecture and interior design studio. A fan of contemporary architecture styles, RUANGRONA’s signature style elegantly combines geometric shapes, concrete, glass, and wooden elements to create stylishly beautiful and comfortable homes.
Welcome to The Wynwood. Here you will find a piece of tranquility only steps away from the hustle and bustle of your urban lifestyle. Every detail of The Wynwood, from our multi-generational living friendly floor plan to the piano room at Club Wynwood, was carefully curated to complement your cosmopolitan lifestyle. As you step into The Wynwood, you will be warmly welcomed as we accompany you through this exciting journey. Whether this is your first home, or your second, or third, we hope that visiting The Wynwood will still spark joy and excitement in your hearts. You are welcome to stay as long as you please, and if you choose to stay for good, we wish you a very warm welcome home.
Yours Sincerely,
Two Cities Group
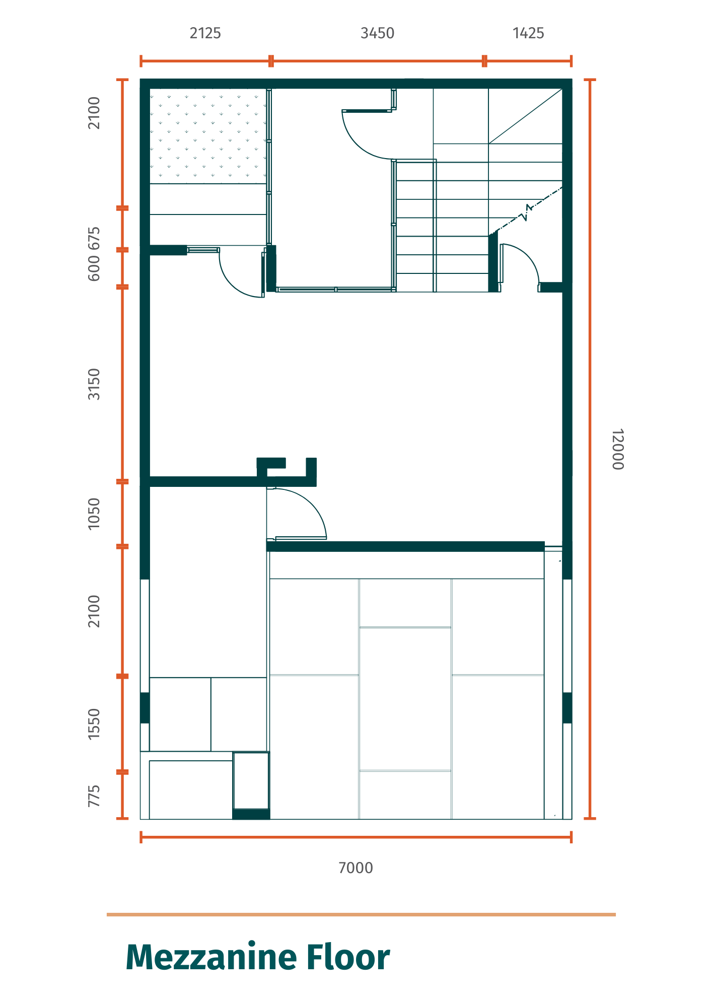
All 35 townhomes at The Wynwood are designed and built for longevity. With its timeless minimalist architecture, large living spaces, a dedicated home office, spacious carport, interior garden, generous storage space, we hope that it is a house that you will enjoy living in for many years to come.
-
All common spaces are intentionally placed on the 1st floor and all private spaces on the 2nd floor to give you and your family a large living area to bond. With our 4-metre ceiling height, this living room enjoys great air circulation thus keeping the house cool and comfortable all day.
-
When designing the kitchen, our architect, RUANGRONA, made it a point to create ample countertop space even for cooking connoisseurs. This combined kitchen and dining area can also function as an entertainment space for your family and friends.
-
With floor-to-ceiling windows and direct views to the garden, this home office is blessed with great natural lighting and is designed for maximum productivity!
-
Not a fan of working from home? Convert this space into a “man cave”, “she shed”, mini home theatre, hobby room, kid’s playpen, or pretty much anything you want!
-
Welcome to your private sanctuary! Whether it is relaxing in your reading nook, people watching from your private balcony, or just simply catching up on the latest episode of your favorite show, this master bedroom has more than enough space to do as much (or as little) as you want.
-
These compact but functional bedroom provides generous space for your little ones to rest, learn, and play. With direct views to the interior garden, our large windows provide adequate ventilation and natural lighting, keeping the rooms bright and your little ones healthy and happy!
With Club Wynwood right at your doorstep, you can live everyday like a staycation! Club Wynwood not only provides a space where you can bond with your neighbors and socialize with friends, but also amenities to support the growth of your little ones. Hosting parties, entertaining friends, organizing swimming and music lessons for your kids will become such a breeze!
-
Tiny but mighty, Club Wynwood has something for everyone in the family!
-
It’s the perfect place to meet neighbors, host guests, or just simply relax!
-
Not a fan of working from home? Come on down to the Coworking Space @ Club Wynwood!
-
The Piano Room @ Club Wynwood is the perfect place for your little one’s piano lessons!
-
This poolside dining room is the perfect space to host gatherings, birthday parties, and more!
-
Spend everyday like a staycation with a swimming pool just steps away from your home.

